eladó,építési,telek,elkezdett,építkezéssel,és,háztervrajzzal,hernádon! hernád,csendes,barátságos,utcájában,eladó,1000,m²-es,építési,telek,amely,ideális,választás,lehet,mindazok,számára,akik,saját,igényeik,szerint,szeretnék,megvalósítani,álomotthonukat.  a,telek,főbb,jellemzői: elkezdett,építkezés:,kész,sávalap ház,tervrajza,rendelkezésre,áll fúrt,kút,méter,mély víz,és,csatorna,bekötés,megigényelve,további,ügyintézés,új,tulajdonos,feladata) "/> eladó,építési,telek,elkezdett,építkezéssel,és,háztervrajzzal,hernádon! hernád,csendes,barátságos,utcájában,eladó,1000,m²-es,építési,telek,amely,ideális,választás,lehet,mindazok,számára,akik,saját,igényeik,szerint,szeretnék,megvalósítani,álomotthonukat.  a,telek,főbb,jellemzői: elkezdett,építkezés:,kész,sávalap ház,tervrajza,rendelkezésre,áll fúrt,kút,méter,mély víz,és,csatorna,bekötés,megigényelve,további,ügyintézés,új,tulajdonos,feladata) "/>

  info@brion.hu

Kezdõlap / Ingatlanok

Ingatlan adatlap Képgaléria

Eladó telek tervrajzzal, építőanyaggal!

Eladó ingatlan Dabasi kistérség, Hernád
14,500,000 Ft / 14,500 Ft / nm

Ingatlan paraméterek

Fekvés DNY
Eladási ár 14,500,000 Ft
Saját telek 1000 nm
Ingatlan típusa Telek
Csatorna Nincs
Gáz Utcában
Villany Utcában
Víz Utcában

Ingatlan bemutatása

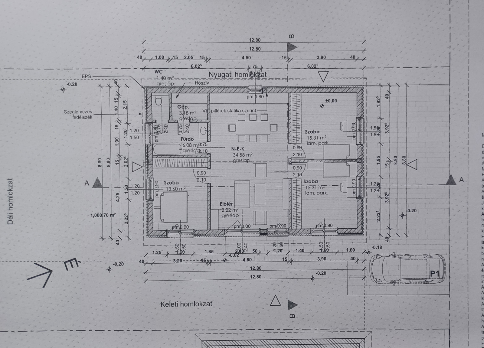
Eladó építési telek elkezdett építkezéssel és háztervrajzzal Hernádon!

Hernád csendes, barátságos utcájában eladó egy 1000 m²-es építési telek, amely ideális választás lehet mindazok számára, akik saját igényeik szerint szeretnék megvalósítani álomotthonukat. 

A telek főbb jellemzői:

  • Elkezdett építkezés: kész sávalap

  • Ház tervrajza rendelkezésre áll

  • Fúrt kút, 63 méter mély

  • Víz és csatorna bekötés megigényelve (a további ügyintézés az új tulajdonos feladata)

  • Áram a telek előtt megtalálható

  • Utcafronti kerítés félkész állapotban: 4 méteres úszókapu nyílás + kiskapu

  • Oldalkerítéshez szükséges alapanyag  (drótháló) rendelkezésre áll

  • Geodétával kiméretett telek

Építőanyagokkal együtt eladó:

A telek része a ház felépítéséhez szükséges nagy mennyiségű építőanyag, többek között:

  • 30-as Ytong falazóelemek

  • Válaszfal elemek

Elhelyezkedés és környék:

A környék rendkívül nyugodt, csendes, barátságos szomszédokkal.
Budapest mindössze kb. 20 perc alatt elérhető autóval, az M5-ös autópálya irányából — ideális választás azok számára, akik szeretnének a főváros közelében, mégis vidéki nyugalomban élni.

Gáspár Kata 06-20 400-4035

Extrák

Fúrt Kút

Elhelyezkedés

Hernád, Eladó telek tervrajzzal, építőanyaggal!

Helységek / Belsõ szintek

Nincsenek helységadatok!

Képek az ingatlanról

Lépjen kapcsolatba velünk!



RÉGIÓ INGATLAN-Dabas
Dabas, 2370, Bajcsy Zs u. 1.
info@dabashouse.hu

További ingatlanok