info@brion.hu

Kezdõlap / Ingatlanok

Ingatlan adatlap Képgaléria

Eladó 123 m2 Családi Ház Dabas egyik legszebb részén!

Eladó ingatlan Dabasi kistérség, Dabas
75,500,000 Ft / 90,854 Ft / nm

Ingatlan paraméterek

Fekvés DNY
Lakótér 123 nm
Szobák 4
Eladási ár 75,500,000 Ft
Saját telek 708 nm
Lakások száma 1
Építés éve 1984
Felújítás éve 2025
Ingatlan típusa Családi ház
Csatorna Van
Gáz Van
Villany Van
Víz Van

Ingatlan bemutatása

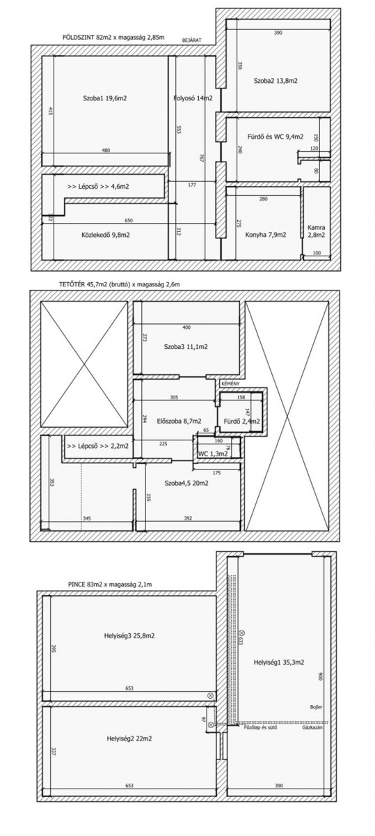
Eladó egy azonnal költözhető, tágas családi ház Dabas kedvelt, csendes részén, nagy telekkel és kiváló adottságokkal. Az ingatlan teljesen tehermentes, jogilag rendezett, hitelképes. A ház szerkezetileg rendkívül masszív, 1984-ben épült, és később a tetőteret is szakszerűen beépítették a molitorbeton födémnek köszönhetően. A tető jó állapotú. A belső terek jól tájoltak, világosak, mégis kellemesen hűvösek nyáron. A nettó lakótér 123 m² két szinten, ezen felül tágas, 82 m²-es pince is tartozik hozzá. A földszint belmagassága 2,85 méter, az emeleten 2,6 méter, a pincében pedig 2,1 méter. Az ingatlanban víz-, gáz- és villany közművek működnek, kút nincs. Az utóbbi időszakban egy átfogó külső és belső részleges felújítás is megtörtént, például vizes helyiségek, belső nyílászárók, festés, kerítés. Fűtését egy idősebb gázkazán, valamint egy vegyes tüzelésű kazán biztosítja. A fűtés acélcsöves rendszerű, és gravitációs alapon is működik. A földszinten acél, az emeleten alumínium radiátorok találhatók, és szivárgás nincs. A melegvizet villanybojler biztosítja. Az ablakok műanyag nyílászárók, jó állapotban vannak, bukóra nyílnak, redőnnyel és (helyenként javítandó) szúnyoghálóval ellátva. Az 5 cm-es polisztirol homlokzati szigetelés mellett a tetőtér is szigetelt: dobozolással kialakított padlásrészében kőzetgyapot szőnyeg található. Az ingatlan egyik előnye a jó alakú 708 m²-es telek, amely számos lehetőséget rejt magában. A másik utca felől egy régi, felújítandó kétszárnyú kapun lehet bejutni, gyalogos bejárattal. Itt, a lakóház keleti oldalán egy nagy garázs vagy kocsibeálló könnyedén kialakítható, illetve terasz is építhető, ahová korábban is nézett egy ilyen kiülő – ennek helye még most is jól látszik. A környék csendes, de kiváló infrastruktúrával rendelkezik: közel van tömegközlekedés, kisebb boltok, éttermek. A szomszédság kifejezetten csendes, barátságos. Ha egy szerkezetileg kiváló, jó adottságú, költözhető állapotú házat keres Dabas egyik legnyugodtabb, mégis jól megközelíthető részén, akkor ez az ingatlan ideális választás lehet. A tulajdonos nyitott a megegyezésre. Ha az ingatlan leírása és a képek elnyerték tetszését, várom megkeresését! A megtekintés előzetes egyeztetés alapján lehetséges.

Gáspár Kata – 06 20 400 4035

Extrák

Konyhabútor Melléképületekkel Pince Tároló Terasz

Elhelyezkedés

Dabas, Eladó 123 m2 Családi Ház Dabas egyik legszebb részén!

Helységek / Belsõ szintek

Nincsenek helységadatok!

Lépjen kapcsolatba velünk!



RÉGIÓ INGATLAN-Dabas
Dabas, 2370, Bajcsy Zs u. 1.
info@dabashouse.hu

További ingatlanok